合肥半山装饰公司,专业办公楼、办公室、厂房装修,20年施工经验,合肥排名前十工装公司联系电话:18919604649(微信同号)。在长三角经济圈加速融合的当下,芜湖作为皖江城市带核心节点,其高端办公楼市场正经历着从功能型向体验型的转型升级。针对这一趋势,合肥半山装饰依托二十年沉淀的行业洞察,为芜湖企业量身打造兼具美学价值与实用功能的办公空间解决方案。


芜湖高端办公楼格调重塑,合肥半山装饰定制专属方案(图1)


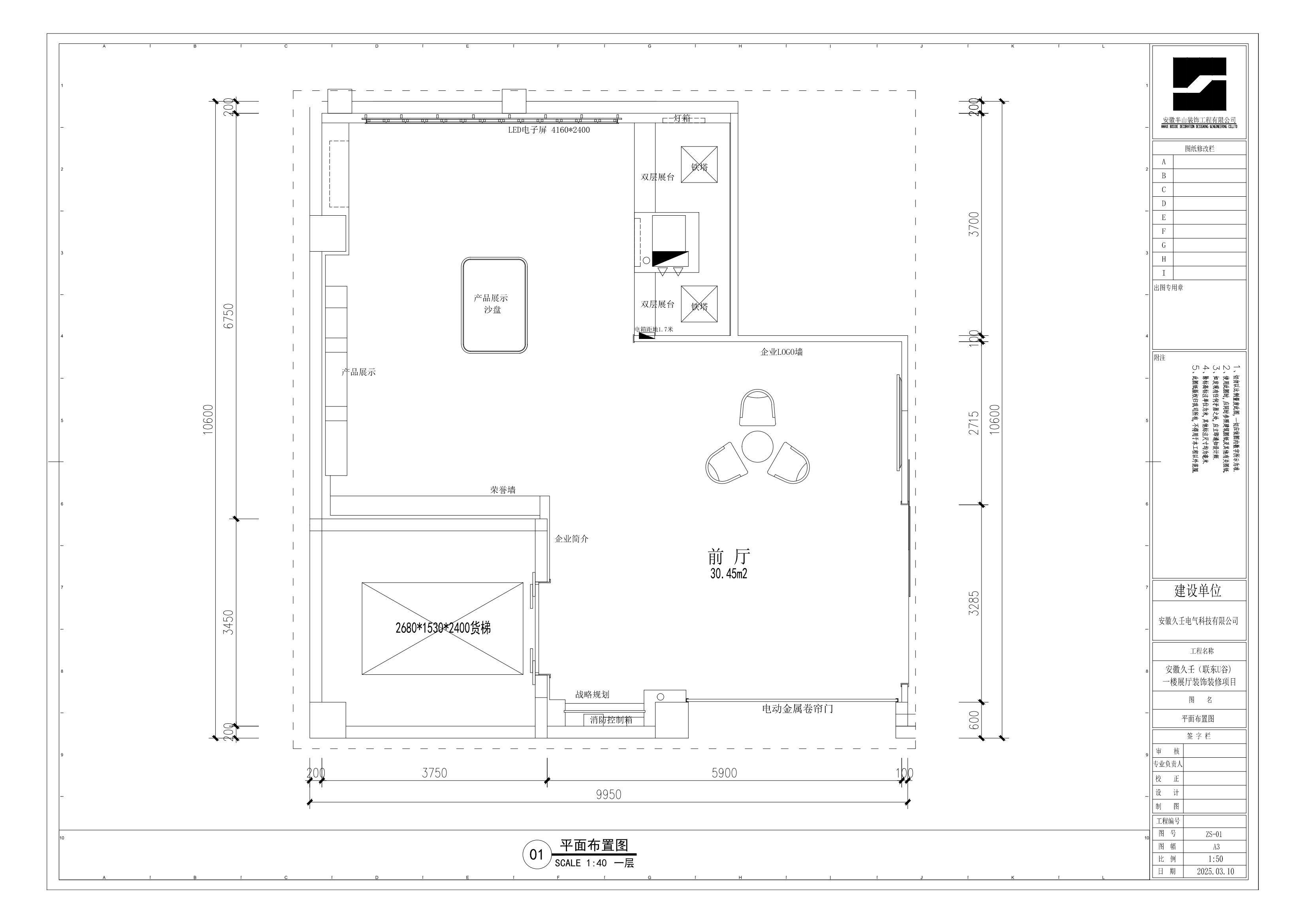
在办公室设计层面,我们深度融合地域特色与国际视野。以芜湖“长江巨埠”的历史底蕴为灵感,采用流线型动线规划打破传统格子间束缚,通过开放式协作区与独立静音舱的有机组合,满足多元办公需求。特别引入合肥本土艺术家创作的装置艺术作为空间视觉焦点,既彰显城市文化基因,又提升员工归属感。对于采光系统的优化,我们运用BIM建模技术模拟不同时段光照角度,确保每个工位都能享受自然光沐浴,同时配置智能调光系统实现能耗与舒适度的平衡。


芜湖高端办公楼格调重塑,合肥半山装饰定制专属方案(图2)


施工技术的创新应用是品质保障的关键。针对芜湖潮湿气候特点,团队自主研发三重防潮工艺:基层采用渗透结晶型防水涂料,中层铺设石墨烯导热膜加速水分蒸发,面层使用纳米级密封胶填缝处理。在隔断工程中,首创“悬浮式钢构骨架+吸音棉复合板材”结构,经实测可降低35分贝噪音传递,为跨部门沟通创造理想环境。电气系统严格遵循国标GB50303标准布线规范,所有弱电井均设置独立屏蔽舱,杜绝信号干扰隐患。

材料选择贯彻绿色建筑理念。从安徽本地采购E0级环保板材,搭配低VOC排放的水性漆料,室内空气质量达到WELL金级认证标准。地面铺装采用回收大理石碎料再生的水磨石,既减少资源消耗又形成独特纹理美感。家具配置方面,与合肥知名智能家居厂商合作开发模块化工作站,支持无线充电、环境监测等物联网功能,让科技隐形于细节之中。


芜湖高端办公楼格调重塑,合肥半山装饰定制专属方案(图3)


项目管控体系实现全流程可视化追踪。通过自研的云端协同平台,客户可实时查看施工进度、材料溯源及质量检测报告。驻场项目经理均持有一级建造师资格证,带领经过德国双元制培训的技术工人团队,确保每道工序符合ISO9001质量管理体系要求。竣工后提供三年质保服务,定期回访维护,真正实现“交钥匙”工程承诺。

从马鞍山到铜陵,从宣城到巢湖,合肥半山装饰已成功打造多个标杆案例。在芜湖某金融科技产业园项目中,我们通过参数化设计将企业LOGO转化为空间造型语言,配合动态灯光秀演绎品牌故事;为蚌埠某生物医药企业构建符合GMP标准的实验室集群时,创新采用负压通风系统与气密门联动控制技术。这些实践证明,优秀的办公环境不仅是生产力工具,更是企业文化的物质载体。


芜湖高端办公楼格调重塑,合肥半山装饰定制专属方案(图4)


选择合肥半山装饰,即是选择与城市发展同频共振的成长伙伴。无论是初创团队还是行业龙头,我们都将以专业态度、精湛工艺和创新思维,为您重塑高端办公楼的格调与价值。欢迎致电咨询,让我们共同开启空间变革之旅!


芜湖高端办公楼格调重塑,合肥半山装饰定制专属方案(图5)