合肥装饰公司>合肥装修公司>办公室装修>厂房装修>展厅装修>办公楼设计装修 > 精品案例 > 售楼部/样板间 > 样板间 > 淮北.华松.蘭墅香汐B户型轻奢风样板间装饰工程
项目信息
项目地址:安徽.淮北市(本项目所有设计资料版权为我公司所有,侵权将追究法律责任)
项目类型:轻奢风样板间装修设计 专业样板间装修设计公司 合肥样板间装修公司
项目面积:130㎡
施工单位:安徽半山装饰工程有限公司
设计说明:
本样板间装修设计项目属于室内装饰装修项目,设计师采用现代轻奢风格,内容包括水电路敷设,墙、顶、地面装饰及后期软装安装。金属线条、块面线性以及大面木制饰面板的运用,赋予会客空间柔美的情绪,是东方的神秘感,大气而拥有张力。现代主义建筑的美学记忆在设计中娓娓道来,强调着几何的线条感,家俱与空间元素融合便得以纳入设计的点-线-面之间。
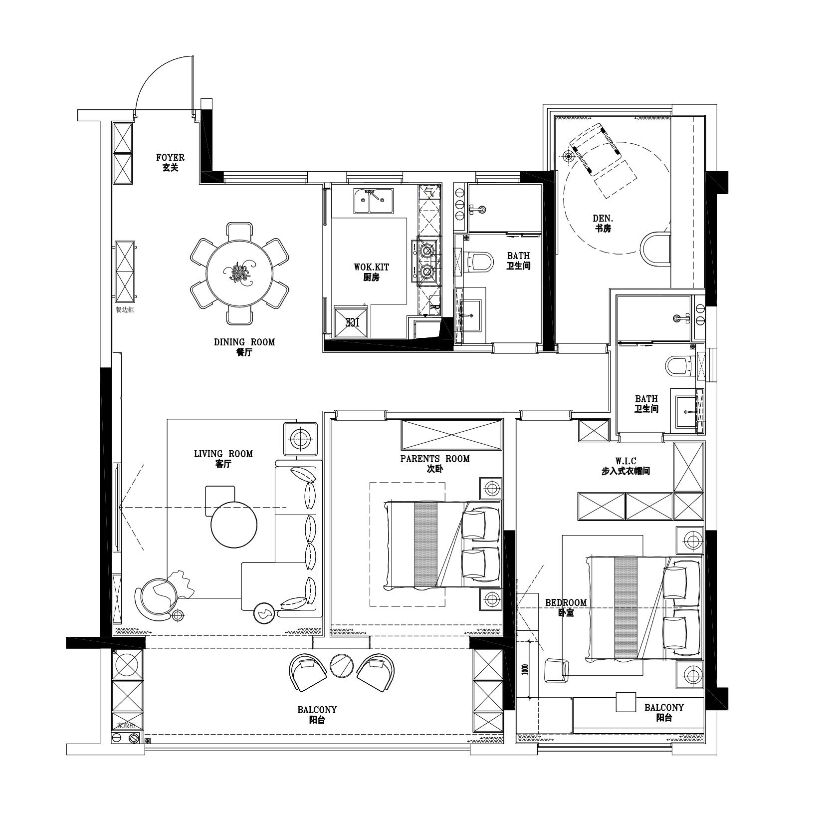
原始平面图

平面布置图

客、餐厅及阳台
效果图

实景图

灰色仿大理石地砖大面积铺贴,搭配浅色木饰面,电视背景墙采用天然带玉质的岩板冷翡翠,赋以不锈钢等细节,天花采用灯带设计,顶部增加磁吸轨道灯;色调以黑、白、灰,点缀翡翠色,体现空间内奢华艺术的典雅气质。
效果图

实景图

客餐厅及12平方的大阳台连贯又相互独立,互不干扰,相互串联而富有层次感,以开放的空间形式,强化出互动关系,适配于多种场景的灵活切换;
主卧
效果图

实景图


主卧室延续素雅奢华的风格气质,超大储物柜,满足女主人的生活需求,背景墙整体采用浅灰色系硬包细节收口,搭配细腻的床品织物肌理,质感丰富细腻,雅致而内蕴。
客卧
效果图

实景图

床头背景墙面选用浅色硬包,整个环线的隐蔽灯带兼具温馨色彩。营造出层层递进的灯光,温润而舒适。保留原结构阳台窗,睡眠空间增添一些轻松安宁的元素。
书房
效果图

实景图

书房空间深色装饰架与浅色皮革纹理形成明暗对比,收口细节更加丰富细腻,深色木制作为层板,底部暗藏线性灯带,整体美观,展示性墙,整个空间赋予音乐主题,可以工作、阅读、放空等,为主人赢得一处释放心灵之地。
卫生间
效果图

实景图

卫生间面盆及壁挂马桶的延伸台面,增加台面的储物功能;淋浴区地面大理石拉槽处理,排水快、不积水,防滑等作用。
安徽半山装饰工程有限公司是一家从事多年的室内设计装饰装修企业,具有总包叁级、装饰装修专项施工乙级以及工程设计专项资质,主要致力于办公室装修、写字楼装修、厂房装修、展厅装修、售楼部装修、样板间装修、民宿装修、店面店铺装修、学校装修、及其它商业空间装修设计施工一体化服务。咨询电话:18919604649