合肥装饰公司>合肥装修公司>办公室装修>厂房装修>展厅装修>办公楼设计装修 > 精品案例 > 售楼部/样板间 > 样板间 > 淮北.华松籣墅香汐高层C户型现代简约风样板间装饰装修项目
项目类型:简约风样板间装修设计 专业样板间装修设计公司 合肥样板间装修公司
项目设计:半山装饰样板间设计部A组
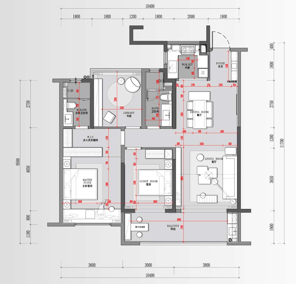
项目面积:120㎡
所在地:安徽·淮北市
设计说明:
该样板间装修设计案例位于淮北市濉溪县。建筑面积119平方米,三室两厅两卫双阳台户型,以现代简约风格为主题,简约而非简单。
项目为高品质项目;设计从形、色、质切入,风格上以现代 高端为主要方向;方案以 “ 现代简约 ” 为主题 ,通过对空间比例和色调的整体打造,来体现项目的质感,打造高端、优雅、精致的都市生活。

莫奈花园——在我心灵的百花园里,采集金色的鲜花,我把最鲜艳的一朵给你,作为我对你的问候。


全能三房,通透中间户,同享边户通风采光,小创新大舒适;



本案以卡其色系为基础色,简洁明快的白色作为点缀色。

本案采用了岩板、金属、纹理细腻的木质、布艺、麻质墙布等材质,来营造舒适的居住氛围。
安徽半山装饰工程有限公司是一家从事多年的室内设计装饰装修企业,具有总包叁级、装饰装修专项施工乙级以及工程设计专项资质,主要致力于办公室装修、写字楼装修、厂房装修、展厅装修、售楼部装修、样板间装修、民宿装修、店面店铺装修、学校装修、及其它商业空间装修设计施工一体化服务。咨询电话:18919604649